Characteristics of Fireproof Glass Platform:
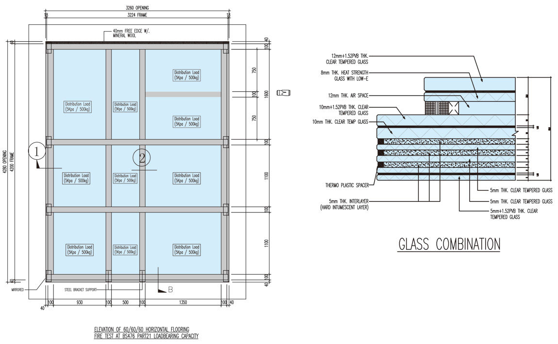
1. Fire prevention and heat insulation for 60 minutes, 90 minutes and 120 minutes. The platform bears more than 500 kg per square meter, which meets the load-bearing design requirements of cement floor.
2. It is as flexible as other fixed glass platforms, but carefully designed to comply with fire regulations.
3. The sophisticated technology is used for sound insulation and fire protection, heat insulation, practical and reliable;
4. Elegant and luxurious design, as well as perfect aesthetic design, can walk easily even if there is a fire nearby.
★Testing of load-bearing fire-proof platform and ceiling glass
★Fire protection and load test are carried out according to the European Standard BS EN1365-2:2000 and British Standard BS 476:Part21:1987.
Product Node Diagram:


